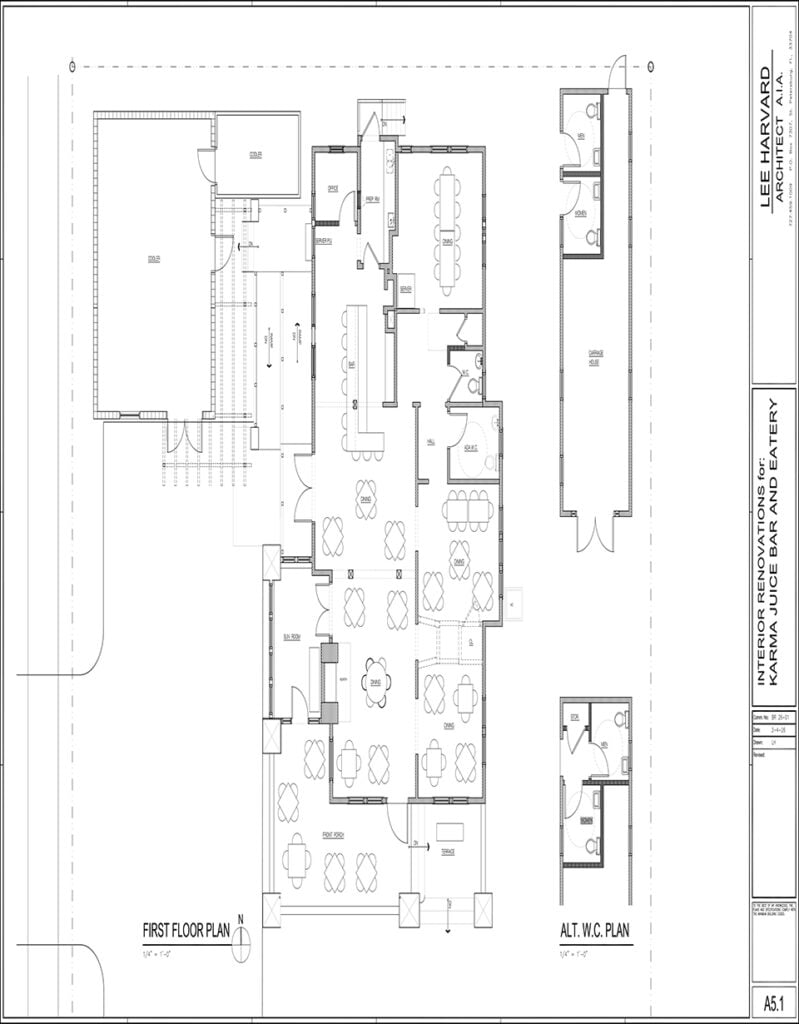
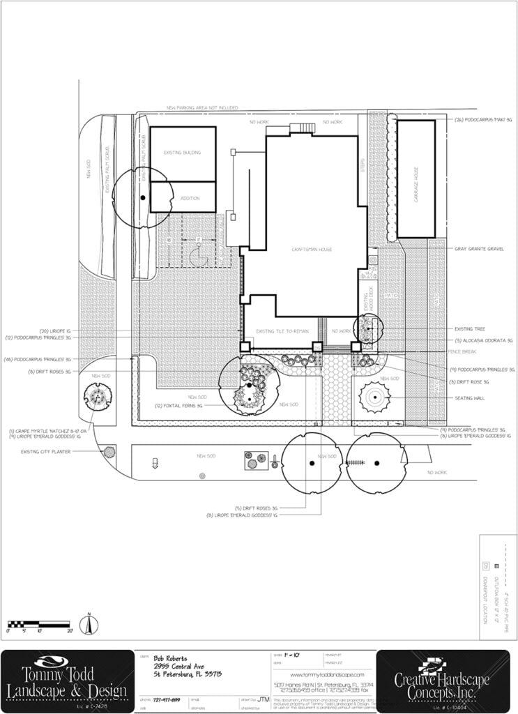
The Craftsman Rose Garden is a vibrant planned mixed-use destination designed to bring together food, art, music, culture, and community in the heart of St. Petersburg. Centered around a stunning 4,000-square-foot courtyard and Central Avenue-facing sidewalk café, the development features a restaurant, Karma Juice Bar & Eatery, and a boutique Airbnb experience — all woven into one dynamic gathering space.
Situated at the prominent northeast corner of 30th Street and Central Avenue, the property connects the energy of the Grand Central District, the creativity of the Warehouse Arts District, and the charm of Historic Kenwood. With plans for immersive public art, live music, pop-up markets, and local community events, The Craftsman Rose Garden is envisioned as more than a destination — it’s a new cultural hub for St. Petersburg.
On May 28th, 2025, Bob Roberts contracted to purchase the property located at 2955 Central Avenue N., St. Petersburg, Florida 33713. For 23 years it has been home to the Craftsman House Gallery, which closed in 2025. Owner and curator Jeff Schorr ran it as an arts & crafts gallery, pottery studio, and an Airbnb unit. The house was built in 1918, as the model home for the Historic Kenwood neighborhood of St. Petersburg.
The Project is a crowd-funded real estate restoration and ownership offering. Meaning you may invest and be a partner/owner.

Highlights
● Historic renovation. A Craftsman-style bungalow in an historic district
● Adaptive reuse. Once a bungalow, reborn as a restaurant and community event space
● Experienced developer. Owned and renovated ~120,000 s.f. In the district
● Coolest street. On St Petersburg’s Central Avenue
● Net Zero. Renovations to focus on energy efficiency
● Walkable. Very walkable, bikeable with good transit options
● Financing. Seller financing in place. Property purchased.
Investing in The Craftsman Rose Garden LLC
Real estate has traditionally been a “gated” asset class, reserved for institutional players or individuals with deep pockets. This crowdfunding investment opportunity flips this script, turning a high-barrier industry into something more communal.

Social arguments for opening these doors to the “Everyperson” investor:
1. Democratization of Wealth Building
For decades, the wealth gap has widened because the best-performing assets (such as commercial real estate and multi-family developments) require significant upfront capital. Crowdfunding lowers the “buy-in,” allowing small investors to access the same appreciation and tax benefits once reserved for the 1%. This shift helps level the playing field for long-term financial security.
2. Community Empowerment and “Skin in the Game.”
When local residents can invest $500 or $1,000 into a new development in their own neighborhood, the social dynamic changes.
3. Local Ownership
Instead of a faceless global corporation owning the block, the community has a literal stake in its own success.
Project Location/Zoning
The house is located in the CCT-2 zoning district of the commercial corridor. This falls inside St. Petersburg’s Corridor Commercial Traditional (CCT) zoning district which is designed to protect and enhance the character of the city’s historic commercial streets, encouraging a walkable, mixed-use environment. It balances traditional development patterns with modern needs for rehabilitation and redevelopment such as walkable streetscapes with retail, food and beverage and sidewalk cafes. Walkable design, zero setbacks, mixed use and context-sensitive height are hallmarks of this zoning district. Although the project is located in the CCT-2 zoning district, which generally allows one to five story buildings, since it is a locally designated historic site with historic buildings which must be preserved, it will remain a green oasis and human scale development in what might one day be a canyon of five story buildings.
The site is 100 X 100 feet for a total of 10,000 SF. It has four large oaks and a huge palm tree which provides lots of shade.

Management/Lead Developer
Since 1979, Robert B. Roberts, Jr., has been acquiring, consolidating and renovating historic buildings in downtown St. Petersburg, contributing to its re-birth. Over time, he owned and renovated four historic buildings on Central Avenue, totaling 116,500 s.f., receiving historic preservation honors along the way. Now retired, Robert is tackling one more St. Petersburg building, The Craftsman Rose Garden, a 10,000 square foot property comprising three buildings, two of which are historic and were built in 1918. Robert has assembled a team of professionals who were with him from the beginning of his career – architect Lee Harvard, SDF Contracting LLC, Tommy Todd Landscape & Design, Fick Mechanical & Inspection and has the support of the City of St. Petersburg’s Planning Department and Historic Preservationist.
There is a limited amount of time to become involved in this opportunity as an investor/owner. You may visit the links below for more general information, or more details on investing.


Get More General Information:
https://craftsmanrosegarden.com
Details of Investment Opportunity:
www.smallchange.co/projects/Craftsman-Rose









